Maison contemporaine Rive droite Vannes
Maison récente – Vannes (56000) VANNES Maison Rive Droite. L’agence…
1.250.000€ FAI
56000 Vannes
Vente
190.000€ FAI












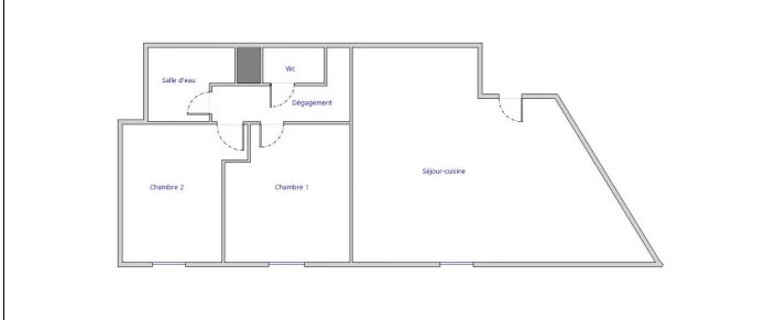
T3 – Vannes (56000)
Cet appartement au premier étage d’une maison ancienne saura vous séduire avec sa situation, idéale entre centre-ville et gare, sa distribution avec une surface de 46m2 comprenant un séjour avec coin cuisine de plus de 20m2, deux chambres, une salle d’eau et un wc séparé, sa luminosité et son classement énergétique en C. Une belle opportunité pour en faire votre logement ou réaliser un placement.
Les informations sur les risques auxquels ce bien est exposé sont disponibles sur le site:
www.georisque.gouv.fr
Les informations sur les risques auxquels ce bien est exposé sont disponibles sur le site Géorisques : www. georisques. gouv. fr
DPE réalisé après le 01/07/2021
Consommation (énergie primaire) : 148.6 kWh/m².an
Émissions : 5 kgCO2/m2 .an
Estimation des coûts annuels en énergie pour un usage standard : entre 710 et 980 € par an.
Selon prix moyens des énergies indexés sur l’année 2021 (abonnement compris).
Maison récente – Vannes (56000) VANNES Maison Rive Droite. L’agence…
1.250.000€ FAI
Maison – Vannes (56000) Vannes – 3 chambres – Jardin…
346.500€ FAI